Cara Gambar Denah Rumah — Bangun rumah butuh persiapan matang agar proses pembangunan berjalan lancar dan hasilnya sesuai harapan Anda.
Banyak orang merasa menyesal dengan hasil bangunan rumahnya karena persiapan atau perencanaan yang dilakukan kurang maksimal.
Alhasil, mereka harus merenovasi beberapa bagian yang tidak diinginkan. Tentunya hal tersebut butuh biaya yang tidak sedikit untuk melakukan renovasi tersebut.
Maka dari itu, disarankan melakukan persiapan dari jauh hari agar tidak mengalami kejadian seperti itu. Untuk persiapan bangun rumah cukup banyak tahapannya, adapun tahapnya yaitu:
- Menyiapkan budget untuk bangun rumah
- Menentukan fungsi serta kebutuhan ruangan
- Menentukan desain rumah yang sesuai & diinginkan
- Mengurus perizinan bangun rumah
- Mencari kontraktor terpercaya & berpengalaman
- Menentukan material yang akan digunakan
- Membuat timeline kerja
Selain 7 persiapan tersebut, ada satu persiapan lagi yang perlu direncanakan sebelum bangun rumah. Adapun persiapan tersebut yaitu membuat denah rumah!
Banyak orang awam hanya berfokus menentukan desain rumah saja tanpa memperhatikan denah rumah. Padahal pembuatan denah rumah sangat penting.
Biasanya, pembuatan denah rumah dilakukan arsitek yang memang paham cara gambar denah rumah dengan menyesuaikan luas lahan rumah Anda.
Jika Anda penasaran bagaimana cara gambar denah rumah, dan mengapa perlu sekali buat denah tersebut, Anda bisa simak pembahasan artikel MBD Kontraktor kali ini sampai selesai, ya.
Baca Juga : Jasa Gambar Denah Rumah untuk Semua Tipe Hunian
Daftar isi
Toggle5 Cara Gambar Denah Rumah yang Tepat & Mudah Dipahami
Gambar denah rumah tidak bisa dibuat sembarangan, perlu keahlian khusus di bidang arsitektur. Makanya, disarankan menggunakan jasa arsitek untuk membuat gambar denah rumah.
Namun, kalau Anda penasaran gimana cara gambar denah rumah yang tepat dan mudah dipahami, Anda bisa simak pembahasan berikut ini!
Menentukan Kebutuhan Ruang Sejak Awal
Cara awal yang paling penting yaitu tentukan terlebih dahulu kebutuhan ruang. Anda jangan langsung gambar denah sebelum cari tahu rumah tersebut akan digunakan untuk kegiatan apa saja.
Anda bisa mulai dari hal dasar terlebih dahulu seperti:
- Jumlah kamar tidur
- Kamar mandi
- Ruang tamu & ruang keluarga
- Dapur & area servis
Jika kebutuhan sudah jelas, gambar denah yang dibuat lebih terarah dan tidak asal-asal hasilnya. Hal ini dapat bantu Anda menghindari revisi berulang kali yang bisa buang waktu dan biaya.
Perhatikan Ukuran & Skala

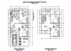
Kesalahan yang sering terjadi saat membuat gambar denah yaitu tidak menggunakan skala yang jelas. Padahal, skala sangat penting agar gambar denah bisa dipahami oleh semua pihak mulai dari tukang hingga kontraktor.
Biasanya, skala pembuatan gambar denah menggunakan 1:100. Dengan skala yang tepat, Anda bisa perkirakan ukuran ruangan secara realistis, sehingga tidak ada ruang yang terasa sempit atau terlalu besar.
Menyusun Tata Letak agar Fungsional
Gambar denah yang tepat tidak hanya rapi, namun juga memberikan kenyamanan. Artinya, alur pergerakan di dalam harus efisien. Contohnya seperti:
- Dapur sebaiknya dekat dengan ruang makan
- Kamar mandi yang mudah diakses
- Kamar tidur jangan langsung menghadap ruang tamu
Tata letak yang tepat buat rumah jadi lebih nyaman saat digunakan sehari-hari.
Cek Sirkulasi Udara & Cahaya
Rumah yang sehat tidak hanya bagus secara desain, namun juga punya sirkulasi udara dan pencahayaan yang bagus juga. Maka dari itu, pastikan tiap ruang punya:
- Akses jendela atau ventilasi
- Pencahayaan alami dari luar
- Tidak terlalu tertutup atau pengap
Gambar denah rumah yang memperhatikan ketiga hal di atas buat rumah jadi sejuk, hemat listrik, dan lebih sehat serta nyaman ditinggali bersama keluarga.
Menggunakan Simbol & Keterangan

Biar gambar denah mudah dipahami, biasanya arsitek akan menggunakan simbol standar seperti:
- Garis dinding
- Arah bukaan pintu
- Posisi jendela
- Nama setiap ruangan
Biasanya, arsitek juga akan menambahkan ukuran panjang dan lebar tiap ruang. Hal ini tentu sangat penting agar Anda atau tukang yang melihat denah tersebut langsung mengerti tanpa perlu banyak penjelasan tambahan.
Pembuatan denah yang jelas dan detail bisa meminimalisir kesalahan selama proses pembangunan berlangsung.
Baca Juga : Jasa Desain Rumah di Medan Terbaik untuk Hunian Impian Anda
5 Alasan Kenapa Gambar Denah Rumah Sangat Penting!
Setelah mengetahui cara gambar denah rumah, maka kali ini akan membahas alasan mengapa penting sekali membuat gambar denah. Simak pembahasan selanjutnya untuk cari tahu alasannya!
Dapat Mengatur Fungsi & Alur Ruangan
Adanya gambar denah rumah bantu Anda untuk menentukan fungsi tiap ruang dengan jelas.
Mulai dari ruang tamu, kamar tidur, dapur, hingga kamar mandi semuanya ditentukan agar saling terhubung satu sama lain.
Denah rumah yang jelas dan detail buat aktivitas keluarga jadi lebih efisien. Misalnya, Posisi dapur yang berdekatan dengan ruang makan, atau kamar tidur yang tidak berdekatan dengan area bising.
Menghindari Kesalahan Saat Bangun Rumah
Kesalahan saat bangun rumah sering terjadi karena tidak adanya perencanaan yang matang. Adanya gambar denah rumah berfungsi sebagai panduan utama bagi tukang dan kontraktor dalam bekerja.
Jika gambar denah rumah sudah jelas sejak awal, risiko salah ukuran, salah posisi ruangan, atau pembongkaran ulang bisa diminimalkan.
Hal ini ni sangat penting karena kesalahan kecil dalam pembangunan bisa berdampak besar dari segi biaya dan waktu pengerjaan.
Membantu Mengontrol Budget

Gambar denah rumah sangat berpengaruh terhadap biaya pembangunan. Dengan adanya denah, Anda bisa menghitung luas bangunan, kebutuhan material, hingga estimasi biaya secara lebih akurat.
Tanpa adanya denah rumah, perhitungan biaya tidak transparan dan berisiko membengkak di tengah proyek.
Dengan adanya gambar denah yang jelas, Anda bisa membuat RAB (Rencana Anggaran Biaya) yang lebih terukur dan realistis.
Maksimalkan Lahan yang Tersedia
Tidak semua orang memiliki lahan yang luas. Mak dari itu, penting untuk memaksimalkan setiap meter persegi yang ada. Denah rumah membantu Anda mengoptimalkan penggunaan lahan agar tidak ada ruang yang tersisa.
Dengan perencanaan yang tepat, lahan terbatas bisa memiliki ruang yang lengkap dan tetap nyaman. Denah rumah juga bantu Anda memaksimalkan pencahayaan alami dan sirkulasi udara agar rumah terasa lebih sehat dan hemat energi.
Menjadi Panduan untuk Mengembangkan Rumah
Kebutuhan rumah bisa berubah seiring waktu, misalnya penambahan kamar atau renovasi. Denah rumah yang tepat akan mempermudah proses pengembangan rumah di masa depan.
Dengan denah yang terencana, struktur rumah sudah dipikirkan untuk kemungkinan perubahan mendatang. Hal ini membuat renovasi lebih mudah dilakukan tanpa harus merenovasi total bangunan yang sudah ada.
Baca Juga : Cari Jasa Desain Rumah Murah? Ini Rekomendasi Terbaiknya
Itulah beberapa alasan mengapa Anda perlu membuat gambar denah sebelum bangun rumah!
Bagi Anda yang ingin buat gambar denah rumah, bisa banget percayakan jasa desain rumah dari MBD Kontraktor yang terbukti berpengalaman dan terpercaya.
Tertarik bekerja sama dengan MBD Kontraktor? Anda bisa langsung konsultasi GRATIS sekarang bersama tim ahli kami untuk diskusi lebih lanjut.
Seberapa bermanfaat postingan ini untuk Anda?
Klik bintang untuk memberikan penilaian Anda!
Berdasarkan penilaian 4000 orang, rating rata-rata saat ini: 5
Belum ada yang memberi suara. Jadilah yang pertama menilai postingan ini!
Mohon maaf jika artikel ini kurang membantu
Bantu kami jadi lebih baik!
Apa yang bisa kami perbaiki dari tulisan ini?





